

Lauréate du concours d’appel à idées du CAUE du Calvados :
« Des sacrées églises » – Vers une réutilisation des églises
Avec mon équipe, nous avons remporté ce concours organisé par le CAUE du Calvados durant nos études.
Notre projet, axé sur la réutilisation et la valorisation du patrimoine religieux, a été sélectionné parmi de nombreuses propositions.
Suite à notre victoire, le CAUE a acquis notre concept afin de le développer. Le projet a ensuite été exposé au musée de Caen, et il a également fait l’objet d’une publication dans un ouvrage dédié, mettant en lumière notre travail en tant que jeunes lauréats.
Voici quelques clichés illustrant notre proposition :

Salle de sport
Projet réalisé en collaboration avec Louise Leleu Architecte.
Création d’une modélisation 3D complète de la future salle de sport, accompagnée de visuels photoréalistes et de vidéos immersives. Ces supports ont été conçus pour valoriser le projet et accompagner la promotion de la salle auprès du client et de ses futurs usagers.

Projet complet :
- Réalisation des plans
- Réalisation du dossier pour la mairie
- Réalisation d'une 3D









Cimetière animalier
- Réalisation d'une 3D


PROJET DE RÉHABILITATION INTÉRIEURE
Maison individuelle — de la conception à la réalisation
- Les plans initiaux
- L’état de la maison avant travaux
- Le rendu final après transformation
Un projet qui mêle fonctionnalité, esthétique et optimisation des espaces


PROJET D'AGRANDISSEMENT
- Étude de faisabilité du projet
- Réalisation d’insertion paysagère pour visualisation dans l’environnement existant



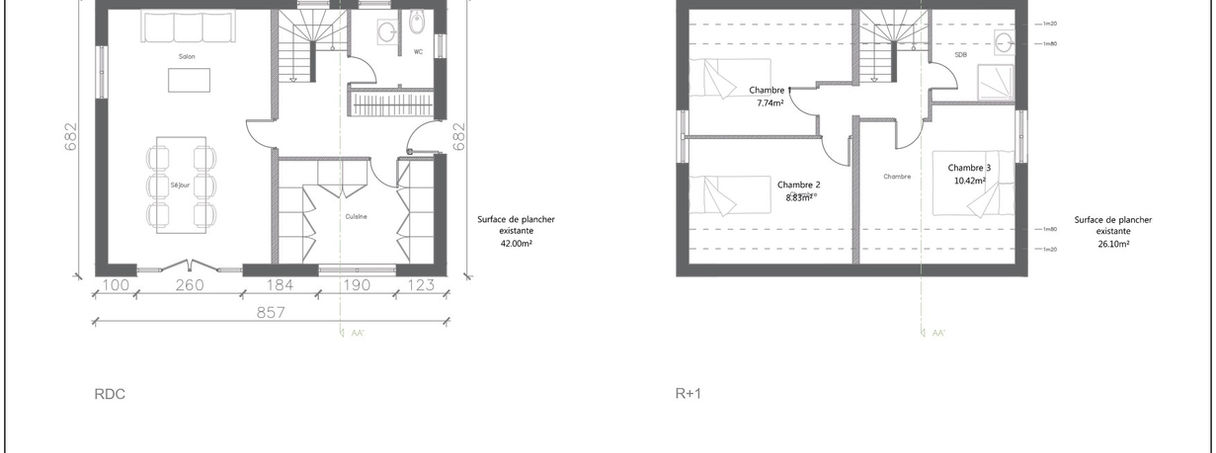
PROJET DE RÉNOVATION ET D’AGRANDISSEMENT D’UNE MAISON INDIVIDUELLE
Réhabilitation complète
-
Relevé de l’existant et prise de cotes pour l’élaboration des plans actuels
-
Proposition de plusieurs scénarios de réaménagement avec agrandissement et création d’un étage
-
Modélisation 3D du projet pour visualisation des volumes, matériaux et ambiances




Agrandissement : Dossier administratif et architectural
Dans le cadre de ce projet, j’ai accompagné les clients dans toutes les étapes nécessaires à la constitution d’un dossier solide, prêt à être déposé en mairie.
Les prestations comprenaient :
-
Relevé de l’existant et prise de cotes précises pour établir les plans de l’état actuel ;
-
Proposition de plusieurs scénarios d’aménagement et d’agrandissement, en fonction des besoins et contraintes du lieu ;
-
Modélisation 3D du projet pour une visualisation claire des volumes, des matériaux et de l’ambiance générale ;
-
Élaboration du dossier de déclaration préalable, comprenant le formulaire CERFA, les pièces graphiques et les documents nécessaires à la demande en mairie.

Réalisation vidéo et visuels 3D d’un appartement sur plan
Pour ce projet, j’ai accompagné ma cliente dans la visualisation de son futur appartement acheté sur plan.
Grâce à une vidéo immersive et des rendus 3D réalistes, elle a pu se projeter dans son futur espace de vie et mieux appréhender les volumes, la luminosité et l’aménagement possible de chaque pièce.
Ces visuels lui ont permis de prendre des décisions éclairées et d’avoir une représentation concrète de son futur logement avant même sa construction.


Agrandissement : Dossier graphique et administratif pour le permis de construire
Dans le cadre de ce projet, j’ai accompagné les clients dans toutes les étapes nécessaires à la constitution d’un dossier solide, prêt à être déposé en mairie.
Les prestations comprenaient :
-
Relevé de l’existant et prise de cotes précises pour établir les plans de l’état actuel ;
-
Proposition de plusieurs scénarios d’aménagement et d’agrandissement, en fonction des besoins et contraintes du lieu ;
-
Modélisation 3D du projet pour une visualisation claire des volumes, des matériaux et de l’ambiance générale ;
-
Élaboration du dossier de déclaration préalable, comprenant le formulaire CERFA, les pièces graphiques et les documents nécessaires à la demande en mairie.

























































































































